Hiermit präsentieren wir Ihnen das ca. 1928 errichtete Wohnhaus, welches sich in der Rodgauer Altstadt befindet und mit seiner soliden Bausubstanz und dem charmanten Grundriss viel Potenzial für individuelle Gestaltung und Modernisierung bietet.
Das Gebäude erstreckt sich über drei Etagen und ist vollständig unterkellert. Im Erdgeschoss befinden sich ein Schlafzimmer sowie ein Badezimmer mit Dusche und Badewanne.
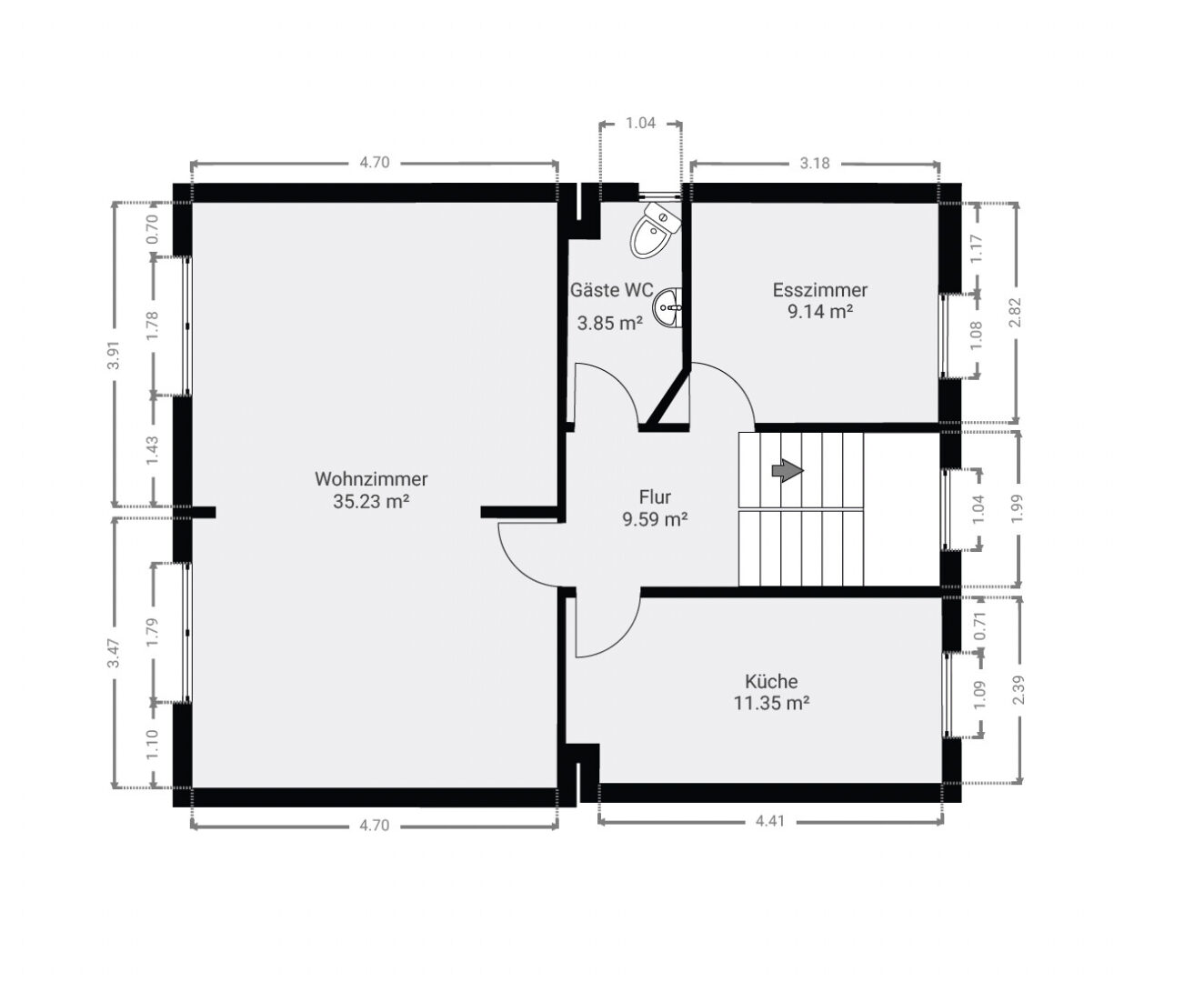
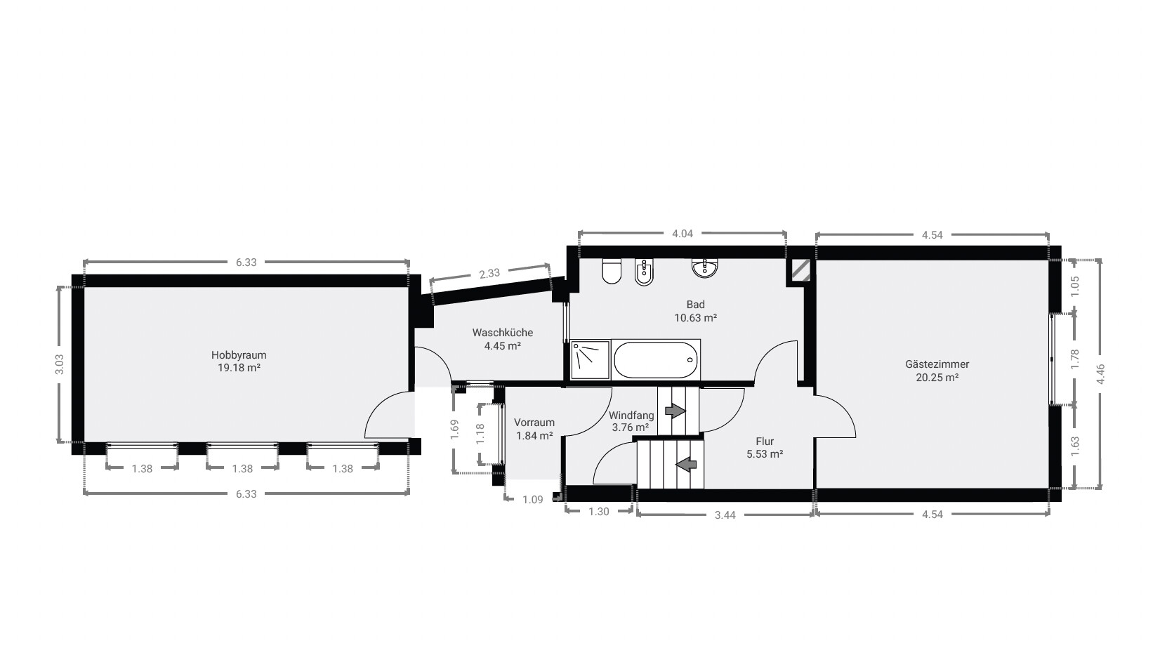
Im Obergeschoss liegen die Hauptwohnbereiche. Hier befinden sich eine Küche mit Fenster, ein großzügiges Wohnzimmer sowie ein separates Esszimmer, das sich ideal als zentraler Treffpunkt für die Familie eignet. Ein Gäste-WC ergänzt die Etage praktisch. Die Räume sind funktional geschnitten und bieten durch ihre klare Aufteilung zahlreiche Möglichkeiten für eine moderne Neugestaltung.
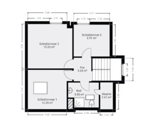
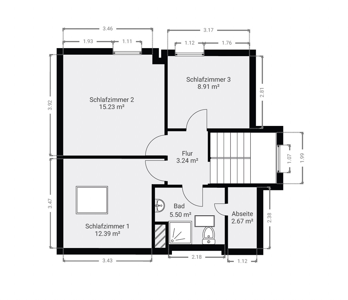
Das Dachgeschoss beherbergt drei weitere Zimmer, die als Schlaf-, Kinder- oder Arbeitsräume genutzt werden können, sowie ein zusätzliches Duschbad. Damit eignet sich das Haus für Wohnen und Arbeiten unter einem Dach.
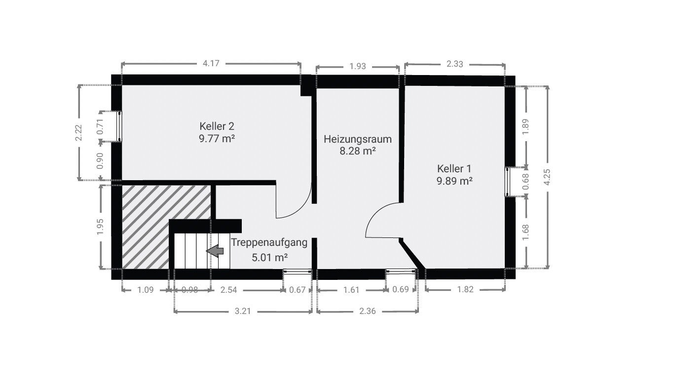
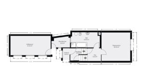
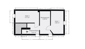
Im Keller stehen zusätzliche Nutzflächen zur Verfügung. Ergänzt wird das Raumangebot durch ein separates Nebengebäude mit eigener Küche, das sich als Hauswirtschaftsraum, Atelier oder Gästeeinheit nutzen lässt.
Insgesamt präsentiert sich die Immobilie als charmantes Altstadthaus mit viel Gestaltungsspielraum. Mit handwerklichem Geschick und etwas Liebe zum Detail lässt sich hier ein wohnliches Zuhause schaffen, das historischen Charme mit individuellem Wohnkomfort verbindet.
Wir freuen uns auf Ihre schriftliche Anfrage! :-)
