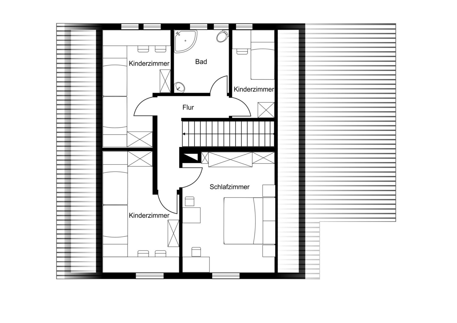
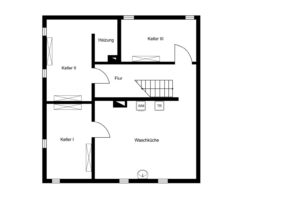
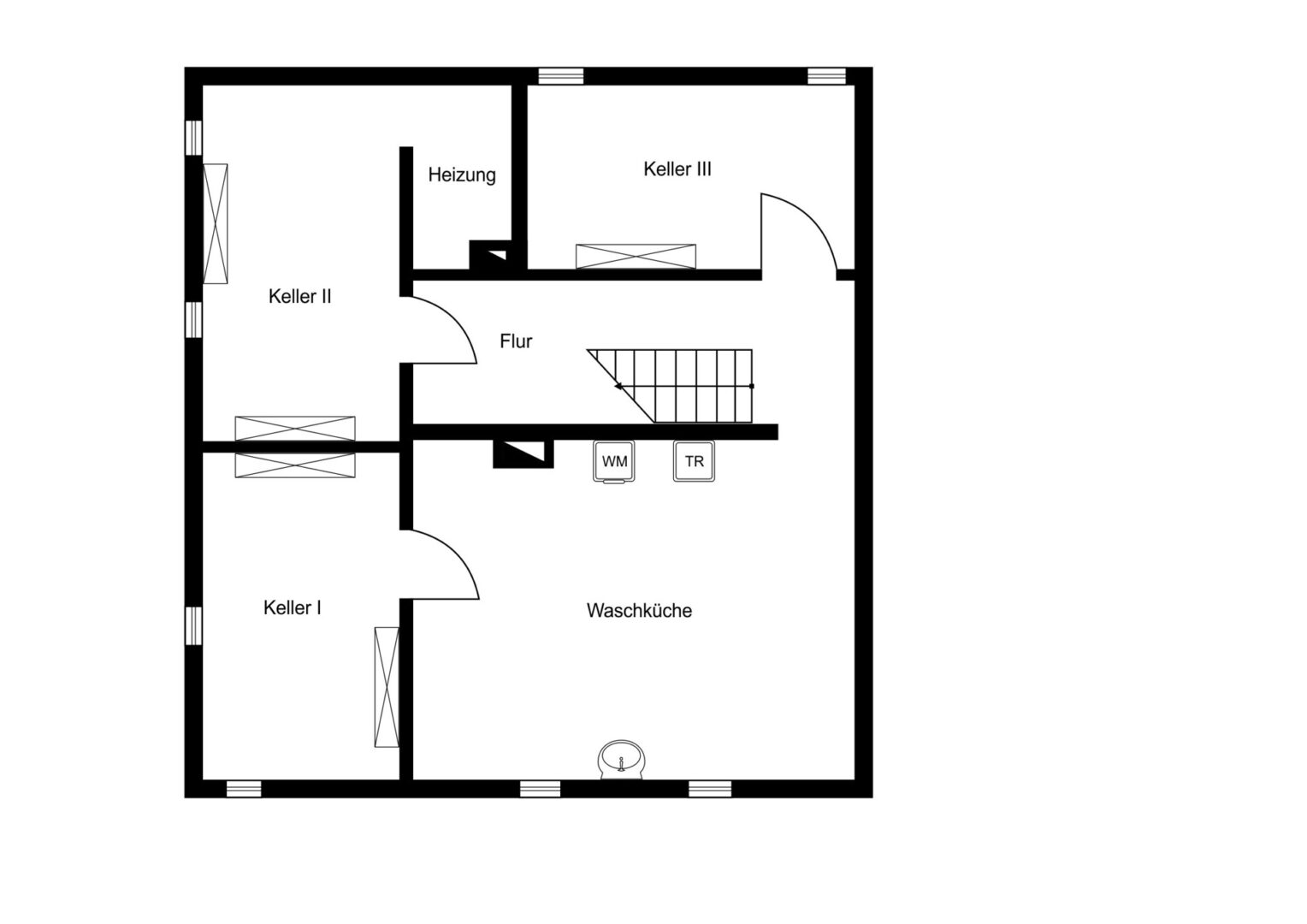
Seltenes Angebot mit doppeltem Mehrwert: Im vorderen Grundstücksbereich heißt Sie ein top-modernisiertes, sehr gepflegtes Einfamilienhaus willkommen – vollunterkellert und regelmäßig modernisiert. Hier lässt sich der Alltag sofort beginnen: ein Einziehen ohne Umwege, ideal für Familien, die Komfort, Substanz und einen harmonischen Grundriss schätzen. Der Untergeschossbereich bietet dank seiner Ausgestaltung überzeugende Nutzqualitäten, sei es als Hobby- und Homeoffice-Zone, Gäste-Bereich oder Rückzugsort für heranwachsende Familienmitglieder.
Der zweite Trumpf liegt im hinteren Teil des außergewöhnlich großen Areals: Die großzügige Neubebauungsmöglichkeit eröffnet eine Bühne für Ideen – vom weitläufigen Familienrefugium mit Park-Garten bis hin zu einem investorenfreundlichen Konzept. Vergleichbare, bereits realisierte Projekte in der direkten Umgebung unterstreichen das Potenzial. Bemerkenswert: Es existiert kein gültiger Bebauungsplan, was – im Rahmen der § 34-Prüfung (Einfügen in die nähere Umgebung) – Spielräume für eine selbstbewusste Planung schafft. Denkbar sind Varianten von der Teilung des Grundstücks über die Erschließung mittels Wegerecht bis hin zu architektonisch anspruchsvollen Neubauvolumen, die das Umfeld qualitätsvoll fortschreiben.
Die Lage verbindet ruhiges Wohnen mit der Nähe zum Bahnhof Langen – ein seltener Spagat aus Entschleunigung und Erreichbarkeit. Ob Sie sofort einziehen und den großen Garten genießen möchten, parallel eine Bauplanung anstoßen oder als Investor Optionen ausloten: Dieses Ensemble erlaubt kluge Entscheidungen in Etappen – heute nutzen, morgen erweitern, langfristig Werte entwickeln.
Gern denken wir mit Ihnen „in alle Richtungen“ und begleiten Sie von der ersten Idee über die Machbarkeitsprüfung bis zur konkreten Planung. Sprechen Sie uns an – wir freuen uns auf Ihre Vision.
